Ops!
Velikost
Št. kopalnic
Model
Št. etaž
Št. spalnic
Arhitektura
Št. sob
Za vse, ki iščete leseno montažno hišo trendovskega izgleda s svojevrstim dizajnerskim karakterjem, je hiša A 148 prava rešitev.
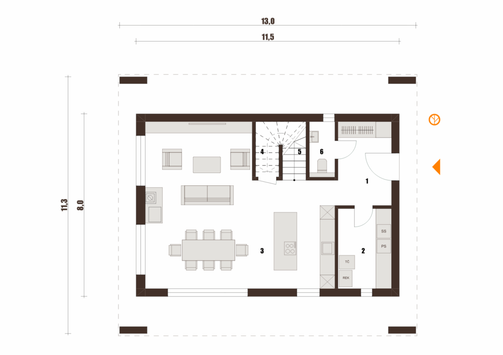
Pritličje hiše odlikuje prostoren bivalni del s kuhinjo, jedilnico in dnevno sobo, ki ponuja veliko bivalnega ugodja, saj lahko prav vsak družinski član najde kotiček zase. Hiša poleg vhoda z veliko garderobnega prostora v pritličju nudi še dnevni WC in večji tehnični prostor s pralnico, pod stopniščem pa se nahaja priročna shramba.
Zasnova mansardnega dela hiše vsebuje dve zelo komfortni in svetli otroški sobi, udobno spalnico ter samostojno garderobno sobo s kotičkom za ličenje. Posebnost hiše se v mansardnem delu kaže v prostorni zasnovi kopalnice, ki ponuja praktičen, udoben tuš in luksuzno kopalno kad za prave trenutke sprostitve.
Dizajnerska odlika hiše so razsežni napušči na vzdolžnih straneh hiše, ki nudijo senco v poletni pripeki, v zimskem času pa hišo dodatno ščitijo pred vremenskimi pojavi. Njena značilna sodobna pojavnost ter dovršena arhitekturna zasnova na 148 m2 površine sta razveselili že marsikaterega kupca Jelovica hiše.


Pošljite povpraševanje

Kako deluje sodobna montažna hiša?
Možnosti prilagoditev
Izvedbene faze
Ali pa končamo še precej prej, zaključna dela pa prepustimo vam.
BASIC
3. gradbena faza
Obseg: Zunaj dokončan objekt
Trajanje: 90 dni
- Organizacija gradbišča (gradbena tabla, WC, zavarovanje v času gradnje)
- Izdelava konstrukcije lesene hiše (zunanje in notranje stene, ostrešje)
- Dobava in montaža lesene hiše
- Vgradnja zunanjega stavbnega pohištva (okna, vhodna vrata)
- Pokrivanje hiše s kritino in kleparska dela
- Izolacijska fasada z dekorativnim zaključnim slojem
MEDIUM
4. gradbena faza
Obseg: Groba montažna dela
Trajanje: 120 dni
- Vse iz izvedbene faze Basic ter
- Izvedba grobega razvoda elektroinštalacij v stenah
- Izvedba grobega razvoda inštalacij za ogrevanje, prezračevanje
- Izvedba grobega razvoda inštalacij vodovoda
- Zapiranje sten in stropov
- Izvedba estriha
FINAL
5. gradbena faza
Obseg: Hiša na ključ
Trajanje: 180 dni
- Vse iz izvedbene faze Medium ter
- Slikopleskarska dela
- Izvedba finega razvoda elektro inštalacij (vtičnice, stikala) in strojnih inštalacij
- Dobava in zagon naprave za ogrevanje, prezračevanje (toplotna črpalka, …)
- Keramičarska dela in talne obloge
- Namestitev sanitarne opreme
- Notranje lesene stopnice
- Notranja vrata
Prednosti naših sistemov
Varčni z energijo
prilagodljivi in lahko izpolnijo
tudi najstrožje zahteve po
trajnostnosti in energetski
varčnosti.
Potresno varni
štirikrat lažja in bolj
prilagodljiva od klasično
grajene in prenese sunke do 9.
stopnje po rihterjevi lestvici.
Požarno varni
ploščam konstrukcijski
elementi Jelovičinih sistemov
dosegajo najvišje ravni požarne
odpornosti.
Zvočno izolirani
zagotavljajo tudi izjemno
zvočno izolacijo, primerljivo s
klasično gradnjo.








