Ops!
Velikost
Št. kopalnic
Model
Št. etaž
Št. spalnic
Arhitektura
Št. sob
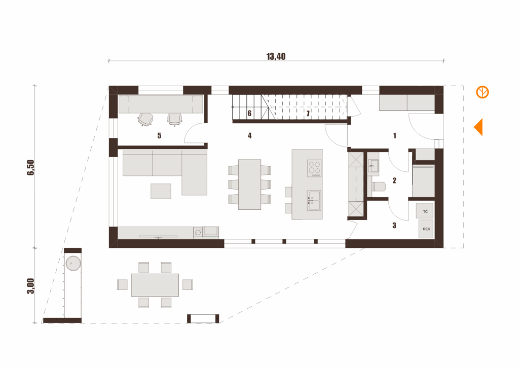
Lesena montažna hiša D 141 ponuja idealno razporejene prostore z veliko udobja za vse družinske člane. Na 141 kvadratnih metrih površine omogoča prilagodljivost prostorov v različnih obdobjih življenja in zagotavlja visoko kvaliteto bivanja.
V pritličju je bivalni del oblikovan kot odprt svetel prostor, ki povezuje dnevni prostor s kuhinjo in jedilnico. Zasnova kuhinje predvideva večji kuhinjski otok, ki bo deloval kot osrednje mesto družinskega ali družabnega dogajanja. Poleg vhoda z garderobnim delom, zasnova pritličja ponuja kopalnico s tušem, tehnični prostor in shrambo pod stopniščem. Prednost hiše je večji kabinet v pritličju, ki ponuja dovolj prostora za dve večji pisalni mizi.
Spalni del hiše v nadstropju nudi tri prostorne spalnice. V udobnih in svetlih otroških sobah je na voljo obilo prostora za ustvarjanje ali učenje. Spalnica staršev je zasnovana za maksimalen komfort in sprostitev, za dobro organizirane garderobne omare je predviden ločen garderobni prostor. Posebna odlika hiše je vsekakor prostorna, sodobno zasnovana kopalnica z večjim tušem in prostorom za savno ali razkošno, masažno kopalno kad. Poleg kopalnice se v nadstropju nahaja večja pralnica s prostorom za shranjevanje ali sušenje perila.


Pošljite povpraševanje

Kako deluje sodobna montažna hiša?
Možnosti prilagoditev
Izvedbene faze
Ali pa končamo še precej prej, zaključna dela pa prepustimo vam.
BASIC
3. gradbena faza
Obseg: Zunaj dokončan objekt
 Trajanje: 90 dni
- Organizacija gradbišča (gradbena tabla, WC, zavarovanje v času gradnje)
- Izdelava konstrukcije lesene hiše (zunanje in notranje stene, ostrešje)
- Dobava in montaža lesene hiše
- Vgradnja zunanjega stavbnega pohištva (okna, vhodna vrata)
- Pokrivanje hiše s kritino in kleparska dela
- Izolacijska fasada z dekorativnim zaključnim slojem
MEDIUM
4. gradbena faza
Obseg: Groba montažna dela
 Trajanje: 120 dni
- Vse iz izvedbene faze Basic ter
- Izvedba grobega razvoda elektroinštalacij v stenah
- Izvedba grobega razvoda inštalacij za ogrevanje, prezračevanje
- Izvedba grobega razvoda inštalacij vodovoda
- Zapiranje sten in stropov
- Izvedba estriha
FINAL
5. gradbena faza
Obseg: Hiša na ključ
 Trajanje: 180 dni
- Vse iz izvedbene faze Medium ter
- Slikopleskarska dela
- Izvedba finega razvoda elektro inštalacij (vtičnice, stikala) in strojnih inštalacij
- Dobava in zagon naprave za ogrevanje, prezračevanje (toplotna črpalka, …)
- Keramičarska dela in talne obloge
- Namestitev sanitarne opreme
- Notranje lesene stopnice
- Notranja vrata
Prednosti naših sistemov
Varčni z energijo
prilagodljivi in lahko izpolnijo
tudi najstrožje zahteve po
trajnostnosti in energetski
varčnosti.
Potresno varni
štirikrat lažja in bolj
prilagodljiva od klasično
grajene in prenese sunke do 9.
stopnje po rihterjevi lestvici.
Požarno varni
ploščam konstrukcijski
elementi Jelovičinih sistemov
dosegajo najvišje ravni požarne
odpornosti.
Zvočno izolirani
zagotavljajo tudi izjemno
zvočno izolacijo, primerljivo s
klasično gradnjo.









 
 