Ops!
Velikost
Št. kopalnic
Model
Št. etaž
Št. spalnic
Arhitektura
Št. sob
Lesena montažna hiša I 157 je odlična izbira za družino, ki išče udobje velikih prostorov. Poleg prostornih dimenzij, pozornost pritegnejo tudi velike steklene površine in trendovska arhitektura brez napuščev.
Sodobno zasnovana je tudi razporeditev prostorov, ki v pritličju kot osredni bivalni prostor ponuja večjo kuhinjo z jedilnico ter prostorno dnevno sobo. Zasnova kuhinje predvideva postavitev kuhinjskega otoka, ki vabi k ustvarjanju kulinaričnih mojstrovin pod domačo streho. Kuhinja tako ne bo le prostor za pripravo hrane, temveč središče družinskega življenja. Dnevna soba omogoča uživanje v vsakodnevnih trenutkih, kot tudi vse, kar potrebujete za prijetne in sproščene zabave in druženja s prijatelji.
Dovršena zasnova ohranja bivalni del odprt in komforten, velike steklene površine pa poskrbijo za obilico naravne svetlobe, ustvarjajo vizualno povezavo z okolico ter podaljšajo hišo navzven. Na željo stranke lahko postavimo nadstrešnico za letno teraso, bio-klimatsko pergolo ali pokrito letno kuhinjo, s čimer bivalni prostor postane uporaben in prijeten v vseh letnih časih.
V pritličju se nahajajo še vse preostale funkcionalne enote, ki poskrbijo za udobno bivanje; kopalnica, pralnica, tehnika, prostoren kabinet, ki je lahko soba za goste ali dodatna shramba.
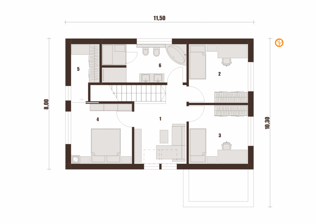
Nadstropje hiše je zasnovano kot idealno zatočišče za regeneracijo in udobje. Dve prostorni in svetli otroški sobi ter spalnica z lastno garderobo zagotavljajo popolno funkcionalnost, obenem pa nudijo občutek toplega in prijetnega doma. Nadstropje navduši s prostorno kopalnico, kjer je na voljo kopalna kad, večji tuš in dovolj prostora za postavitev domače savne.


Pošljite povpraševanje

Kako deluje sodobna montažna hiša?
Možnosti prilagoditev
Izvedbene faze
Ali pa končamo še precej prej, zaključna dela pa prepustimo vam.
BASIC
3. gradbena faza
Obseg: Zunaj dokončan objekt
Trajanje: 90 dni
- Organizacija gradbišča (gradbena tabla, WC, zavarovanje v času gradnje)
- Izdelava konstrukcije lesene hiše (zunanje in notranje stene, ostrešje)
- Dobava in montaža lesene hiše
- Vgradnja zunanjega stavbnega pohištva (okna, vhodna vrata)
- Pokrivanje hiše s kritino in kleparska dela
- Izolacijska fasada z dekorativnim zaključnim slojem
MEDIUM
4. gradbena faza
Obseg: Groba montažna dela
Trajanje: 120 dni
- Vse iz izvedbene faze Basic ter
- Izvedba grobega razvoda elektroinštalacij v stenah
- Izvedba grobega razvoda inštalacij za ogrevanje, prezračevanje
- Izvedba grobega razvoda inštalacij vodovoda
- Zapiranje sten in stropov
- Izvedba estriha
FINAL
5. gradbena faza
Obseg: Hiša na ključ
Trajanje: 180 dni
- Vse iz izvedbene faze Medium ter
- Slikopleskarska dela
- Izvedba finega razvoda elektro inštalacij (vtičnice, stikala) in strojnih inštalacij
- Dobava in zagon naprave za ogrevanje, prezračevanje (toplotna črpalka, …)
- Keramičarska dela in talne obloge
- Namestitev sanitarne opreme
- Notranje lesene stopnice
- Notranja vrata
Prednosti naših sistemov
Varčni z energijo
prilagodljivi in lahko izpolnijo
tudi najstrožje zahteve po
trajnostnosti in energetski
varčnosti.
Potresno varni
štirikrat lažja in bolj
prilagodljiva od klasično
grajene in prenese sunke do 9.
stopnje po rihterjevi lestvici.
Požarno varni
ploščam konstrukcijski
elementi Jelovičinih sistemov
dosegajo najvišje ravni požarne
odpornosti.
Zvočno izolirani
zagotavljajo tudi izjemno
zvočno izolacijo, primerljivo s
klasično gradnjo.









